Never Miss a Listing!

Astoria, Store for Rent

Commercial Leasing $ 15,000/Per month
Open for Inspection Times
No inspections are currently scheduled
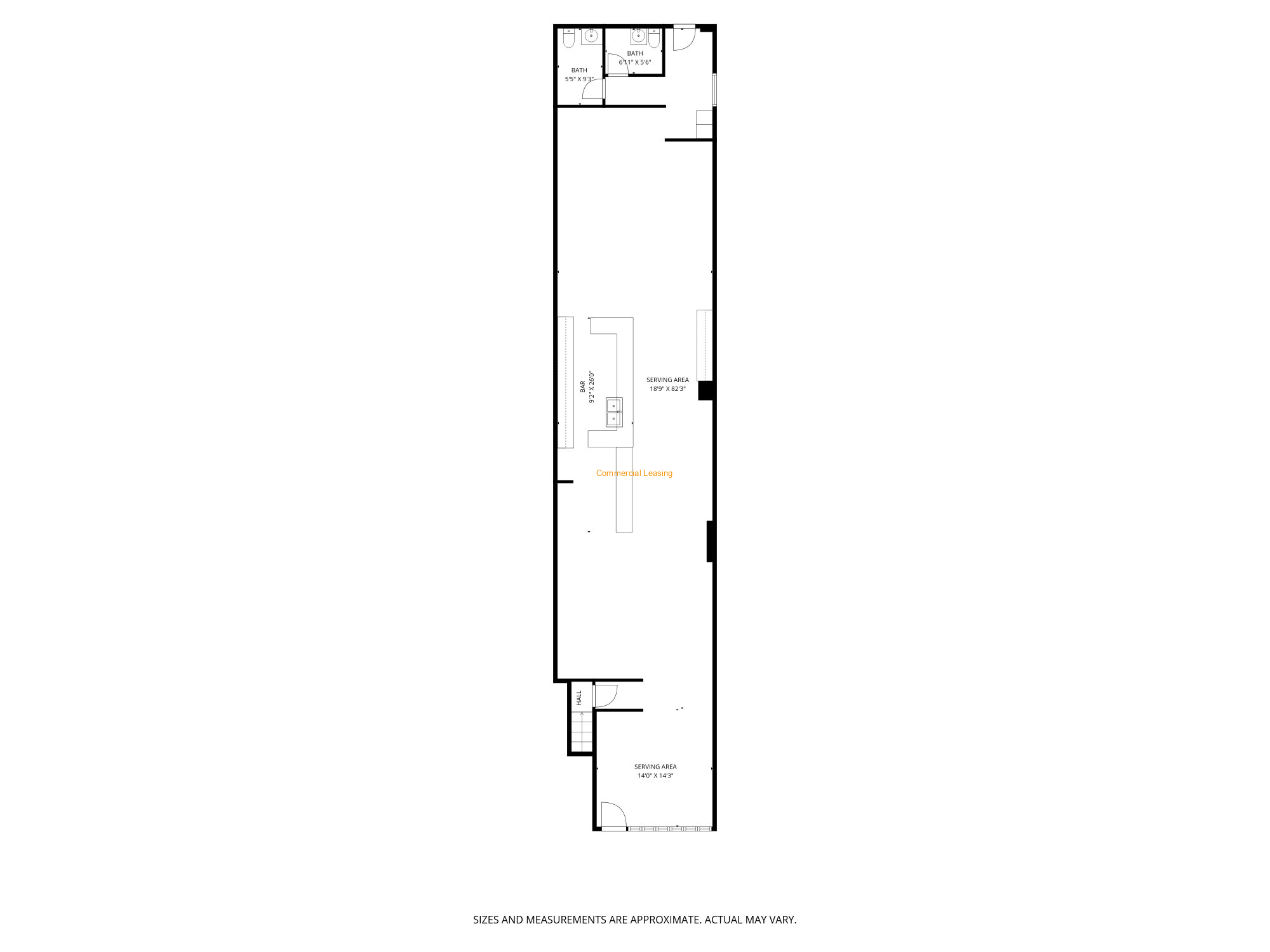
Leasing Opportunity!!

FOR LEASE Prime Retail / Commercial Space | 31-30 Ditmars Blvd, Astoria, NY 11105 Size: ±2,500 SF (including basement) Asking Rent: $15,000 / Month Possession: Immediate Property Highlights Metropolis Realty is pleased to present an exceptional leasing opportunity at 31-30 Ditmars Boulevard, ideally positioned in the heart of Astoria’s premier retail corridor. This ±2,500 SF space (inclusive of a fully usable basement) offers outstanding visibility, heavy foot traffic, and proximity to major neighborhood anchors.  Frontage: Prime visibility along Ditmars Blvd  Ceiling Heights: High ceilings throughout main level  Basement: Full, dry, and accessible—ideal for storage or additional operations  Condition: Delivered vacant and ready for build-out  Transportation: Steps to the N/W subway lines at Ditmars Blvd Station  Surrounding Tenancy: Starbucks, CVS, Dunkin’, Taverna Kyclades, Hamidos, and numerous national and local retailers  Neighborhood: Dense residential population with strong daytime and evening traffic Ideal Uses  Retail / Showroom  Service Business  Café / Restaurant  Boutique Fitness / Wellness  Medical or Professional Office Highlights at a Glance Feature Detail Total Area ±2,500 SF (including basement) Asking Rent $15,000 / month Availability Immediate Transit N/W Subway at Ditmars Blvd – <2 min walk

Features

  • Mobile: 516-322-5786
  • License: 10401353908
Request more Details
There are no comment there
Add comment
Location
Facilities
Value for money
Cleanliness
Please insert the symbols from the Image to field below.
     
       
Related properties
Properties in same Property type
Astoria, Store for Rent
Commercial Leasing $ 15,000/Per month
 
 
  • Basic information
  • ($). 0
    ($). 30,000,000
  • Details
  • -
    -
  •   Advanced search